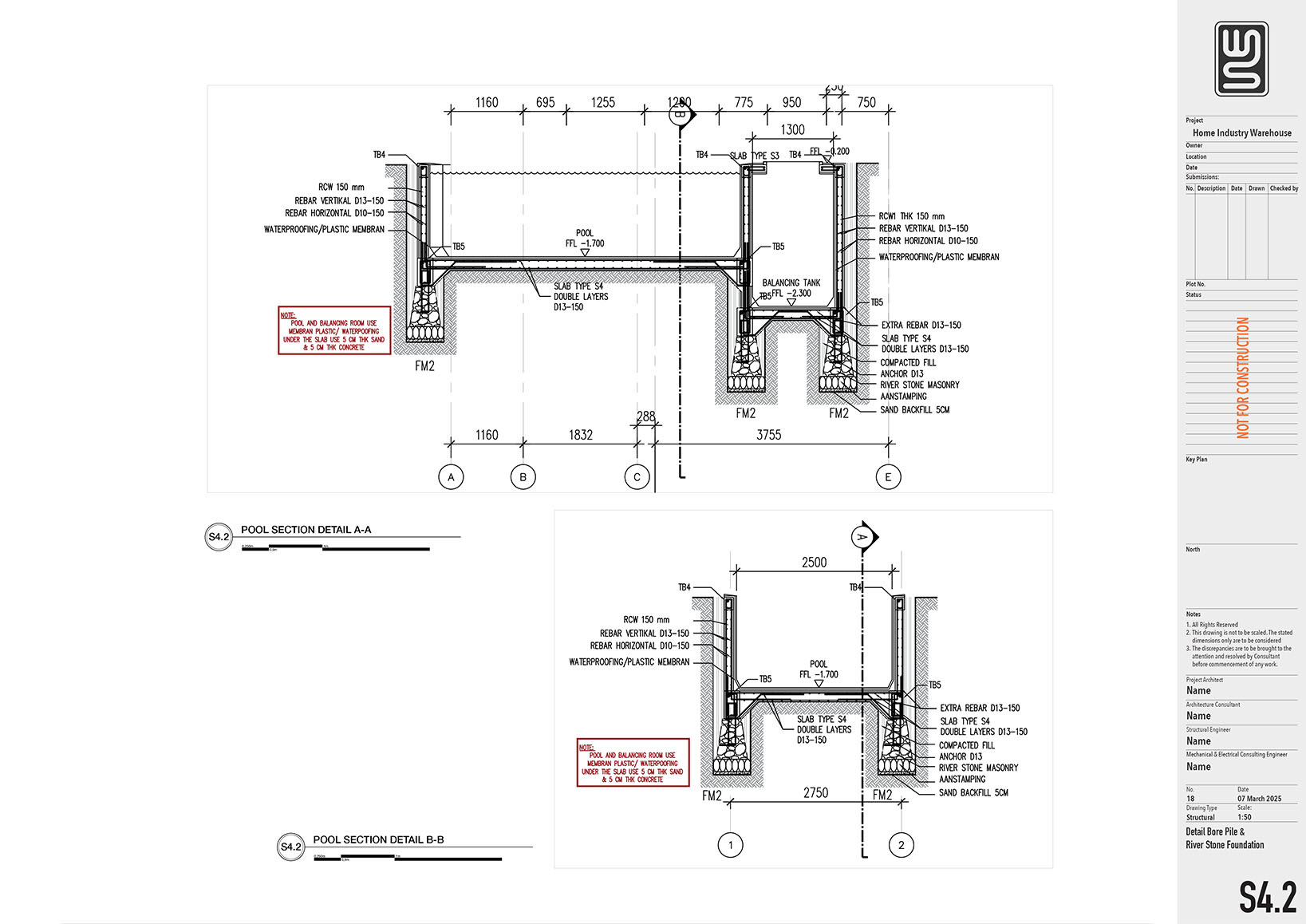
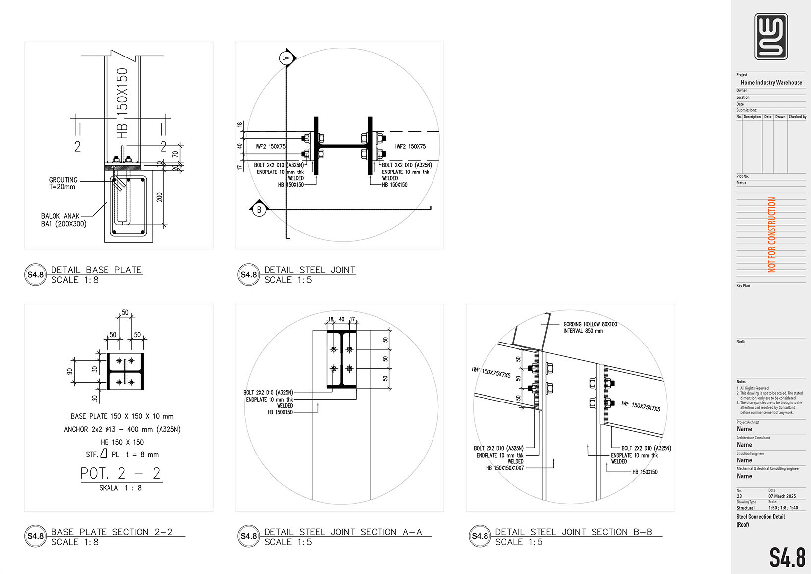
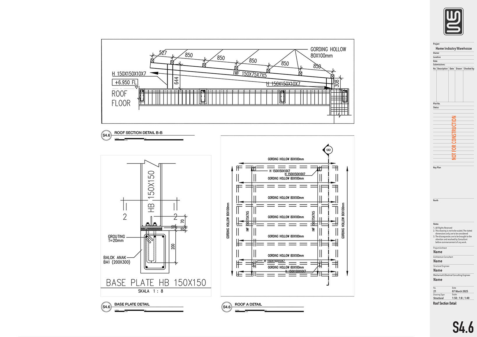
Architecture and structure technical drawing project of a 185 sqm private villa in Tumbak Bayuh, Mengwi